Current licensing applications
This webpage details licensing applications currently in process under the Licensing Act 2003.
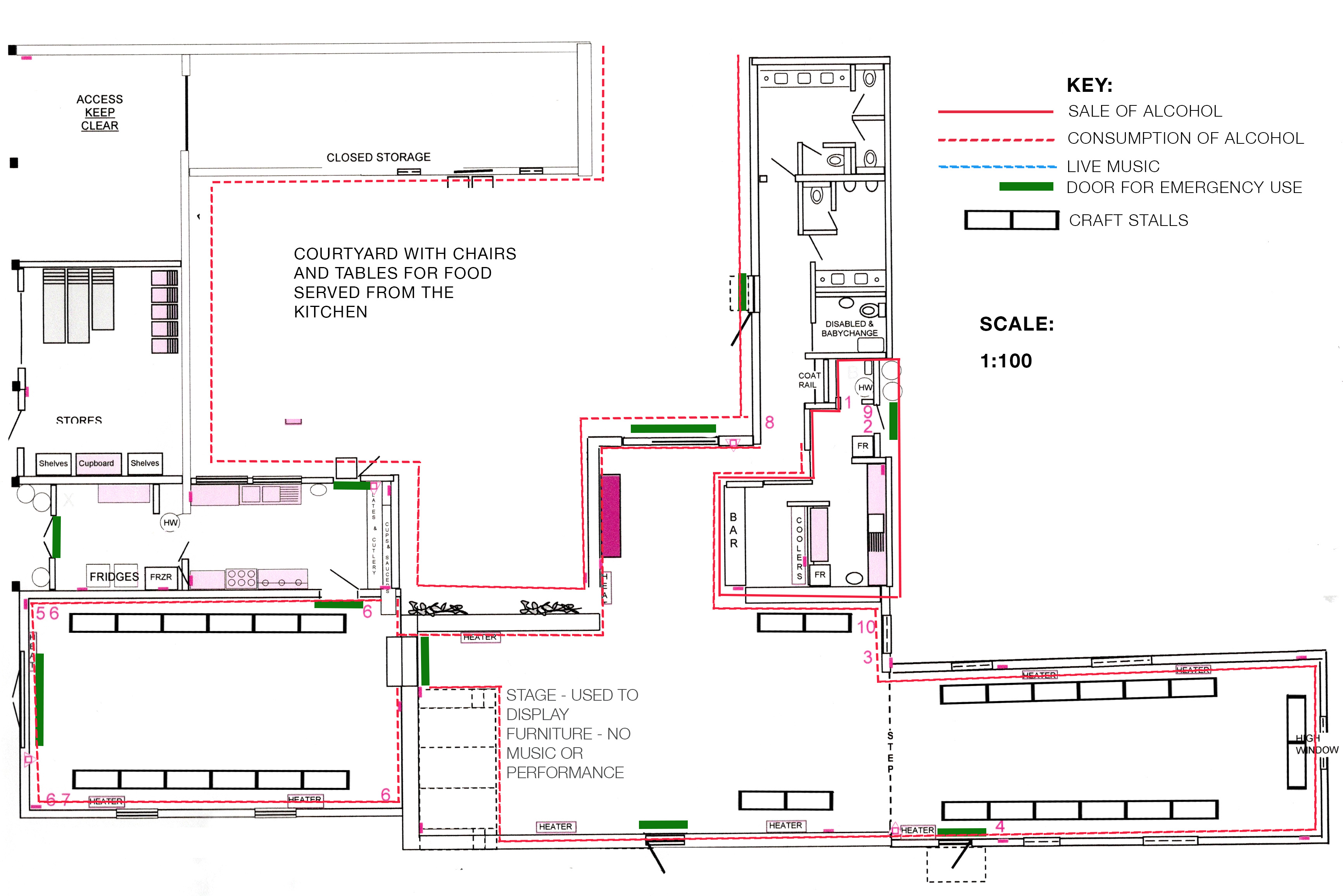
Wyverstone Beer & Music Festival
| Reference/Type: | Section 17/New Premise Licence Application |
|---|---|
| Premise: | Wyverstone Beer & Music Festival, Wyverstone Village Hall, Rectory Road, Wyverstone, Stowmarket IP14 4SH |
| Applicant: | Wyverstone Beer & Music Management Committee |
| Public Consultation end date: | 26 March 2026 |
| Application Summary: | Sale of Alcohol for consumption On the Premise, Live & Recorded Music outdoors. |
| Documentation: | Please read Wyverstone Beer & Music Festival application, please read Wyverstone Beer & Music Festival plan 1, please read Wyverstone Beer & Music Festival Plan 2. |
Elmswell Tavern
| Reference/Type: | Section 17/New Premise Licence Application |
|---|---|
| Premise: | Elmswell Tavern, School Road, Elmswell, Bury St Edmunds IP30 9EE |
| Applicant: | Elmswell Parish Council |
| Public Consultation end date: | 30 March 2026 |
| Application Summary: | Sale & Supply of Alcohol On & Off the Premise, Indoor Sporting Events, Recorded Music indoors, Live Music indoors & outdoors. |
| Documentation: | Please read Elmswell Tavern application, please read Elmswell Tavern Appendix A, please read Elmswell Tavern plan 1, please read Elmswell Tavern plan 2. |
Weird & Wonderful Wood, Stowmarket
| Reference/Type | Section 17 New Premise Licence Application |
|---|---|
| Premise: | Weird & Wonderful Wood, Haughley Park, Wetherden, Stowmarket, Suffolk, IP14 3JY |
| Applicant: | Weird & Wonderful Wood Events CIC |
| Public Consultation end date: | 21 April 2026 |
| Application Summary: |
Grounds and Barn for an event, Live Music (Outdoors) Performance of Dance (Outdoors) Anything of a Similar description (Indoors & Outdoors) and Sale and Supply of Alcohol (ON & OFF the premises) |
| Documentation: | Please read Weird & Wonderful Wood application, Please read Event Conditions for Part M, Please read Barn Plan, Please read Site plan |
Guildenacre Ltd, Helmingham
| Reference/Type: | Section 17 New Premise Licence Application |
|---|---|
| Premise: | Guildenacre Ltd, C/O Helmingham Hall, Helmingham, Stowmarket, Suffolk, IP14 6EF |
| Applicant: | Guildenacre Ltd |
| Public Consultation end date: | 22 April 2026 |
| Application Summary: | Small Cafe and Events area, Sale and Supply of Alcohol ON the premises, Films, Live Music & Recorded Music (Outdoors) |
| Documentation: | Please read Final application Guildenacre Ltd, Please read Appendix A Guildenacre, Please read Site plan, Please read Plan 2, Please read Plan 3, |
Comment on a licensing application
Representations must be made in writing for the attention of the Licensing Team, Mid Suffolk District Council (as the Licensing Authority) at Endeavour House, 8 Russell Road, Ipswich IP1 2BX, or by email to licensingteam@baberghmidsuffolk.gov.uk
We have published guidance on how to comment on a licence.
It is an offence knowingly or recklessly to make a false statement in connection with an application and the maximum fine for which a person is liable on summary conviction for the offence is unlimited.